| 建物種別 | マンション |
|---|---|
| 改修規模 | 全面リフォーム |
| 築年数 | 築22年 |
| 総工事面積 | 約73.32m2 |
| 総工事費 | 約679万円 |
| 地域 | 秋田県 |
| 家族構成 | 夫婦+子供1人 |
| テーマ | 団らんキッチン、明るい部屋、オール電化、その他 |
12帖のLDが17帖へ。大きな収納も設置。
採光のよい明るいリビングに。
半独立スタイルのキッチン。家電収納ができるカップボードを設置。広々としたキッチンで楽しく料理ができる。
引出しタイプの収納で下段にはバケツなどの掃除用具もすっぽり入る。ツインラインLED照明で顔に影ができにくい。
アクセントパネルで上質感を演出。浴槽は水あかや汚れがつきにくいからお掃除らくらく。
最新の節水型便器へ。壁埋め込式収納を設けることで狭いスペースも有効活用。
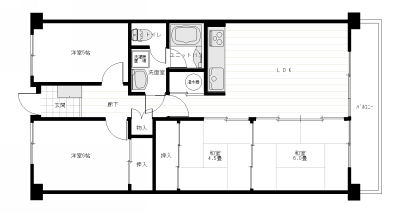
マンションの一室を躯体を残して大幅リフォーム。細切れで使い勝手の悪かった間取を全面改装しました。 お客様の家族構成・生活スタイルに合わせ、和室をなくしたことでリビングがぐっと広くなり、また採光もよく気持ちが良いので家族が自然と集まるリビングへと生まれ変わりました。キッチン、トイレ、バスなどの水廻り設備、建具や床材なども一新し、明るくなって動線も改良されました。


和室をなくしリビングを広くしたい。

12帖のLDが17帖へ。大きな収納も設置。
下がり壁と建具によって採光が遮られ薄暗い。

採光のよい明るいリビングに。
お料理を楽しみたい。

半独立スタイルのキッチン。家電収納ができるカップボードを設置。広々としたキッチンで楽しく料理ができる。
収納が少なく小物が散らかりがち。

引出しタイプの収納で下段にはバケツなどの掃除用具もすっぽり入る。ツインラインLED照明で顔に影ができにくい。
タイル貼りで寒々しい雰囲気。

アクセントパネルで上質感を演出。浴槽は水あかや汚れがつきにくいからお掃除らくらく。
間取か細切れで使い勝手が悪い
