| 建物種別 | 戸建て |
|---|---|
| 改修規模 | 全面リフォーム |
| 築年数 | 築35年 |
| 施工期間 | 約100日 |
| 地域 | 愛知県 |
| 家族構成 | 2世帯4人(大人3人、子ども1人) |
リビング・ダイニングを見渡すことができる対面キッチン
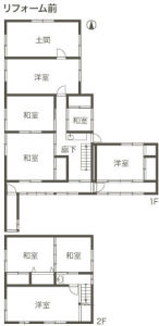
息子様との同居をきっかけに、長年使っていなかった離れを二世帯住宅にリフォームしたN様邸。各世帯の生活空間を上下階で分け、LDKや水廻りなどを共有空間とすることで、親と子が気兼ねなく快適に生活できる住まいになりました。耐震補強を施した上で、住宅の断熱性能を高め、太陽光発電システムやエコキュートの最新設備を採用。光熱費負担の少ない暮らしを目指しました。また、お母様のためにバリアフリー対策も。段差や廊下への手すりの設置をはじめ、急な階段も勾配が緩やかになるように架け替えています。
