明るく開放的な玄関になりました。
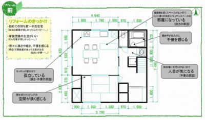
料理教室や友人がよく集まると言う事だったので、アイランド型のキッチンを提案させて頂き、当初はお施主様が和室をそのまま残してといご要望だったのですが、思い切って和室もフロアーに変更させて頂きました。内装は白色にすることで明るく清潔感がでるようにしました。
〒796-0202 住所:愛媛県八幡浜市古町2丁目1-15 電話:0894-36-3810 FAX:0894-21-2833
■運営会社名 小西建設株式会社 ■建設業 愛媛県知事許可(特-4)第1511号 ■建築士事務所 一級建築士事務所:愛媛県知事登録第2147号