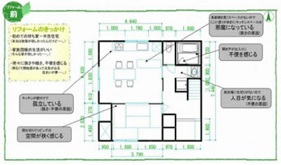
フロートアイランドにすることで料理教室もより一層楽しめます。収納がたくさんでき、さりげなく小物を飾れるカップボード。両サイドからの照明と白をメインにした内装で、明るく清潔感のあるキッチン&ダイニングにしました。
和室から洋室にしたことで、リビングが広く感じます。
明るく開放的な玄関になりました。
トイレはアラウーノでお掃除ラクラク。かわいらしいトイレに仕上がりました。
酸素美泡湯付きなので、お肌もツルツルで翌日の化粧のノリもいいそうです。
料理教室や友人がよく集まると言う事だったので、アイランド型のキッチンを提案させて頂き、当初はお施主様が和室をそのまま残してといご要望だったのですが、思い切って和室もフロアーに変更させて頂きました。内装は白色にすることで明るく清潔感がでるようにしました。
キッチンスペース。以前は部屋全体が暗く感じました。

