PanasonicリフォームClub
TOP TOPリフォーム事例検索詳細

愛媛県

家族や友人と団欒できるアイランドキッチン
<2009年度リファイン大賞 中四国優秀賞受賞>

お店の情報・お問い合わせ  このお店の他の事例を見る
データ
建物種別 戸建て
改修規模 全面リフォーム
築年数 築15年
施工期間 約30日
地域 愛媛県
全国の「Panasonic リフォーム Club」のお店をさがす
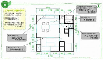
リフォームポイント

料理教室や友人がよく集まると言う事だったので、アイランド型のキッチンを提案させて頂き、当初はお施主様が和室をそのまま残してといご要望だったのですが、思い切って和室もフロアーに変更させて頂きました。内装は白色にすることで明るく清潔感がでるようにしました。

ビフォーアフター
ビフォー

アフター

施工店情報
パナソニックリフォームクラブ
小西建設株式会社 保内店
(旧:リファイン八幡浜)

〒796-0202
住所:愛媛県八幡浜市古町2丁目1-15
電話:0894-36-3810 FAX:0894-21-2833

■運営会社名 小西建設株式会社
■建設業 愛媛県知事許可(特-4)第1511号
■建築士事務所 一級建築士事務所:愛媛県知事登録第2147号

このお店の情報・事例を見る
小西建設株式会社 保内店(旧:リファイン八幡浜)のリフォーム事例一覧
このお店の他の事例を見る
ページの先頭へ