| 建物種別 | 戸建て |
|---|---|
| 改修規模 | 全面リフォーム |
| 築年数 | 築60年 |
| 総工事面積 | 約103m2 |
| 施工期間 | 約120日 |
| 総工事費 | 約2860万円 |
| 地域 | 愛知県 |
| 家族構成 | 夫婦 |
| テーマ | 平屋建て、介護、明るい部屋、広々 |
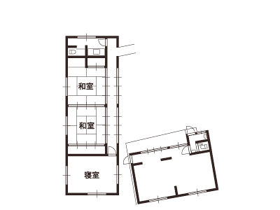
8畳二間の和室を広々したLDKに。テーブルを置けるスペースを確保し、キッチンを中心とした回遊動線も実現。ソイルブラックの室内ドアとブラック色の折下げ天井が大空間LDKのアクセントに。ニッチは遊び心のあるモザイクタイルで仕上げました。
テレビ収納は面材の風合いが美しいオーダー家具。配線を見せないデザインにより、生活感が出ないよう配慮しました。
ランドリールームを兼ねた洗面脱衣室は収納も充実させました。「洗う・干す・仕舞う」を一ヵ所で完結できます。
やわらかな間接照明が訪れる人をあたたかく迎える玄関。壁はタイル仕上げで高級感ある印象に。便利な手洗い場も設置しました。
2棟をウッドデッキでゆるやかに接続。アプローチとアウトドアリビングが融合した心地よい空間ではブランチなども楽しめます。
ご実家のお母様を介護する際の拠点として、敷地内の別棟と納屋をウッドデッキでつなぎました。生活感を極力抑えたホテルライクなインテリアに仕上げ、親子の時間、夫婦の時間を心豊かに過ごせる空間となりました。


8畳二間の和室を広々したLDKに。テーブルを置けるスペースを確保し、キッチンを中心とした回遊動線も実現。ソイルブラックの室内ドアとブラック色の折下げ天井が大空間LDKのアクセントに。ニッチは遊び心のあるモザイクタイルで仕上げました。
