PanasonicリフォームClub
TOP TOPリフォーム事例検索詳細

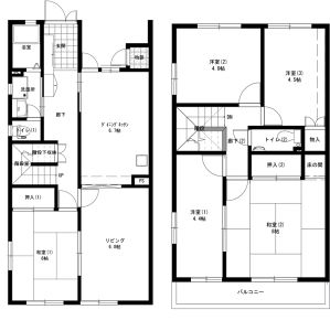
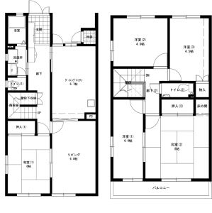
大阪府 N様邸

思い思いに過ごせる幸せ。多彩な居場所があるL D K 。

お店の情報・お問い合わせ  このお店の他の事例を見る
データ
建物種別 戸建て
改修規模 改装・設備交換
築年数 築20年
施工期間 約60日
地域 大阪府
家族構成 大人4人
テーマ バリアフリー、ペット
全国の「Panasonic リフォーム Club」のお店をさがす
リフォームポイント

シンメトリーにベッドとサイドボードを配置ベリティスと家具の色を合わせて暖かみがあるけどスッキリとした印象の寝室に窓から光と風が気持ちよく入ります。

お客様の声
設備を新しくして高性能高機能で安心安全な住まいに、内装をきれいにしてバリアフリーで明るく広々とした我が家にしたい・・・。その思いが叶いました。断熱窓は補助金を利用することを薦めてもらい、高額で悩んだがお得に工事ができた。たくさんアドバイスをくれたこと、例えば少し部屋を広げてドア位置を変えることで使い勝手が良くなったり、壁をなくすことで開放感が出たり、リビングドアだけクラフトレーベルにするのがおかしくないか相談したり、そういったいろいろな相談が気楽にできたことが本当に良かった。
担当者の声
髙橋衣合子

ご近所の同じRC連棟でお父様・息子様宅両方ともリフォームさせて頂いた方からのご紹介です。弊社への信頼と多数の実績により、選んでいただきました。ありがとうございました。
ビフォーアフター
ビフォー

アフター

ビフォー

アフター

このリフォームで採用したパナソニック商品
施工店情報
パナソニックリフォームクラブ
株式会社紀陽 大阪南店
(旧:リファイン大美野)

〒599-8126
住所:大阪府堺市東区大美野167-38
電話:072-239-6868 FAX:072-239-6888

■運営会社名 株式会社紀陽
■建設業 大阪府知事許可(般-4)第87860号
■建築士事務所 二級建築士事務所:大阪府知事登録(ろ)第9467号

このお店の情報・事例を見る
株式会社紀陽 大阪南店(旧:リファイン大美野)のリフォーム事例一覧
このお店の他の事例を見る
ページの先頭へ