| 建物種別 | 戸建て |
|---|---|
| 改修規模 | 改装・設備交換 |
| 築年数 | 築20年 |
| 総工事面積 | 約40m2 |
| 施工期間 | 約40日 |
| 総工事費 | 約475万円 |
| 地域 | 大阪府 |
| 家族構成 | 夫婦+子供二人 |
| テーマ | その他 |
床・建具・棚板は数年後の風合いの変化が楽しみなパイン材。天井の化粧梁は色の濃いオークカラーで空間を引き締めました。
存在感のあるモザイクタイル張りのキッチンカウンターは、奥様も施工に参加し仕上げた思い出深い部分。リビング側はお気に入りの雑貨をディスプレイできる棚板付き。
キッチン側の立ち上がり部分にはあまり見せたくない調味料などを収納。ミルクパンや調理器具は敢えて魅せるスタイルで。
ご夫婦自ら製作した家具がぴったりマッチするお家に大変身!床はテラコッタタイルでムード感たっぷり。
Panasonicの高機能設備でお手入れもラクラクで暮らしやすくなりました。
Panasonicの高機能設備でお手入れもラクラクで暮らしやすくなりました。
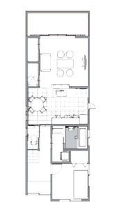
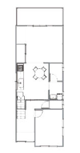
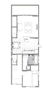
撤去できない柱がある中で、ご要望であった対面キッチンとダイニング・リビングのレイアウトにたくさんの打合せを重ねました。お子様やご主人様がお食事するタイミングなどを打合せでお邪魔する中に拝見していましたので、ダイニングの位置をポイントにレイアウトが最終決定いたしました。デッキをリビングとフラットにしたためリビングもゆったりお使いいただけます。素材感や雰囲気を重要視されていましたのと可愛い雑貨を置くちょっとしたスペースをご要望されていましたので、限られた中での配置にも細かくご提案いたしました。



床・建具・棚板は数年後の風合いの変化が楽しみなパイン材。天井の化粧梁は色の濃いオークカラーで空間を引き締めました。

存在感のあるモザイクタイル張りのキッチンカウンターは、奥様も施工に参加し仕上げた思い出深い部分。リビング側はお気に入りの雑貨をディスプレイできる棚板付き。

キッチン側の立ち上がり部分にはあまり見せたくない調味料などを収納。ミルクパンや調理器具は敢えて魅せるスタイルで。

ご夫婦自ら製作した家具がぴったりマッチするお家に大変身!床はテラコッタタイルでムード感たっぷり。

Panasonicの高機能設備でお手入れもラクラクで暮らしやすくなりました。

元々風の通り道は1方向だけだったのが、ダイニングとキッチンに窓を設置することで、4方向から風が通り抜ける心地良い空間に!