| 建物種別 | 戸建て |
|---|---|
| 改修規模 | 全面リフォーム |
| 築年数 | 築35年 |
| 施工期間 | 約96日 |
| 地域 | 群馬県 |
| 家族構成 | 母+夫婦+子供1人 |
| テーマ | 団らんキッチン、二世帯、その他 |
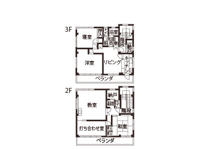
2階は、お母様専用フロアーとして、階段をプライベートエリアの外に設けるなど、しっかりとプライバシーを確保。
部屋の大きなクローゼットの中に愛用のタンスを収納する工夫にも大満足です。
お母様と一緒に暮らすためリフォームしたY様ご夫婦。お仕事と育児を両立する忙しい毎日の中で、家事がスムーズにでき、お子様が走り回っても安心な二世帯の住まいの新しいカタチとなりました。

