| 建物種別 | 戸建て |
|---|---|
| 改修規模 | 全面リフォーム |
| 築年数 | 築25年 |
| 工事面積 | 約10m2 |
| 施工期間 | 約60日 |
| 工事費 | 約343万円 |
| 地域 | 愛知県 |
| テーマ | バリアフリー、ペット |
暖かく、お掃除しやすいユニットバスへ取替え。モノトーンの落ち着いた空間で、極上のリラックスバスタイムに。サイズも1717へワンサイズ大きいものを入れました。
物が溢れがちな脱衣室は吊戸棚とランドリーラックで収納力UP!スッキリ収納出来るようになりました。ランドリーラックはフレームだけなので窓から入る光も遮りません。
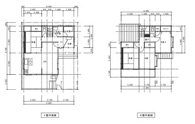
各部屋の入口に段差があり老化の生活を気にされていたので、建具取替えと同時に廊下の床も増貼りをご提案。
元々あった入口の框は取り去り1Fは全てバリアフリーとなりました。要所要所に手すりも設置。


一般的な1616サイズのユニットバス

暖かく、お掃除しやすいユニットバスへ取替え。モノトーンの落ち着いた空間で、極上のリラックスバスタイムに。サイズも1717へワンサイズ大きいものを入れました。
収納に困っていた洗面所

物が溢れがちな脱衣室は吊戸棚とランドリーラックで収納力UP!スッキリ収納出来るようになりました。ランドリーラックはフレームだけなので窓から入る光も遮りません。
