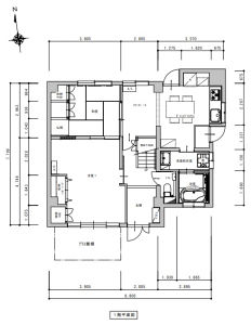
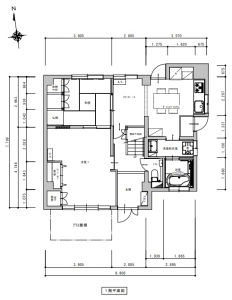
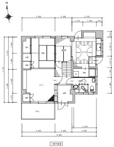
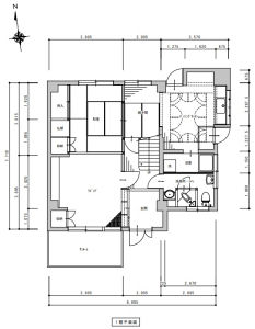
| 建物種別 | 戸建て |
|---|---|
| 改修規模 | 全面リフォーム |
| 築年数 | 築55年 |
| 工事面積 | 約22m2 |
| 施工期間 | 約70日 |
| 工事費 | 約486万円 |
| 地域 | 愛知県 |
| 家族構成 | お兄様+妹ご夫婦 |
| テーマ | 二世帯、バリアフリー、その他 |
垂れ壁があるため天井を塞ぎ、フードは平型タイプを採用しました。
Panasonic ラクシーナ ネオマーブル柄ホワイト
■スキマレスシンク
■エコカチットサラサラワイドシャワー水栓
■クッキングコンセント
■ガラストップガスコンロ・両面焼きワイドグリル
■耐震ロック
■スライドレールソフトクロージング
在来工法の小さくて狭い浴室でしたが、リフォムス1616を採用し、あたたかく安心して入れる安らぎの空間となりました。
Panasonicリフォムス チェリー×モザイクベージュ
①つかまりやすい おきラクてすりで安心!
②浴槽が低くまたぎやすくて安心!
③床暖房+すべりにくい スミピカフロアで安心!
浴室まるごと断熱&保温浴槽で暖かさを逃がさずお湯も冷めにくいから快適でエコ+ヒートショック対策効果的です。スゴピカ素材だからお掃除もラクラクです。
洗面化粧台は浴室と同色のチェリー×モザイクベージュを採用しました。サイドにトールラックを組み合わせ、使い勝手の良い洗面スペースとなりました。
Panasonic シーライン
1階のトイレは停電になっても電池で水を流せるPanasonic アラウーノL150を採用。ボタンを押すだけなので操作も簡単で安心してお使い頂けます。汚れにくいスゴピカ素材・激落ちバブル・トリプル汚れガード+お掃除しやすいスキマレス設計・クリーンスライド設計。更にエコナビセンサー・速暖で電気代も節約。
以前は在来工法の小さくて狭い浴室で、ヒートショックや転倒が心配でしたが、あたたかく、安心して入浴できるようになりました。
トイレも和便器をなくし、手洗いカウンター付きの広々とした空間になりました。スゴピカ素材でお掃除もラクラクです。電池で水を流せるので、いざという時も安心です。
キッチンは垂れ壁があるため、天井を塞ぎ、フードを平型タイプにしました。



垂れ壁があるため天井を塞ぎ、フードは平型タイプを採用しました。
Panasonic ラクシーナ ネオマーブル柄ホワイト
■スキマレスシンク
■エコカチットサラサラワイドシャワー水栓
■クッキングコンセント
■ガラストップガスコンロ・両面焼きワイドグリル
■耐震ロック
■スライドレールソフトクロージング

在来工法の小さくて狭い浴室でしたが、リフォムス1616を採用し、あたたかく安心して入れる安らぎの空間となりました。
Panasonicリフォムス チェリー×モザイクベージュ
①つかまりやすい おきラクてすりで安心!
②浴槽が低くまたぎやすくて安心!
③床暖房+すべりにくい スミピカフロアで安心!
浴室まるごと断熱&保温浴槽で暖かさを逃がさずお湯も冷めにくいから快適でエコ+ヒートショック対策効果的です。スゴピカ素材だからお掃除もラクラクです。

洗面化粧台は浴室と同色のチェリー×モザイクベージュを採用しました。サイドにトールラックを組み合わせ、使い勝手の良い洗面スペースとなりました。
Panasonic シーライン

1階のトイレは停電になっても電池で水を流せるPanasonic アラウーノL150を採用。ボタンを押すだけなので操作も簡単で安心してお使い頂けます。汚れにくいスゴピカ素材・激落ちバブル・トリプル汚れガード+お掃除しやすいスキマレス設計・クリーンスライド設計。更にエコナビセンサー・速暖で電気代も節約。
