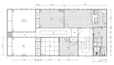
| 建物種別 | 戸建て |
|---|---|
| 改修規模 | 改装・設備交換 |
| 築年数 | 築36年 |
| 工事面積 | 約11m2 |
| 施工期間 | 約110日 |
| 工事費 | 約313万円 |
| 地域 | 愛知県 |
| 家族構成 | ご夫婦+お子様 |
| テーマ | バリアフリー、広々、その他 |
Panasonic MRを採用。お掃除がしやすく、浴槽がまたぎやすくなりました。冬場の寒さ対策に、壁面浴室暖房を設置しました。
・酸素美泡湯
全身を微発泡が包み身体のポカポカが長続き。
お肌もすべすべになります。入浴剤より経済的です!
入浴中の息苦しさも無いので長湯の方にもおすすめです。
Panasonicウツクシーズを採用。上部からの吐水なのでお掃除もしやすく、キレイが長続き。ミラーキャビネットへの収納で小物類もスッキリ!
PanasonicアラウーノS2お掃除しやすく汚さないを追求した
・ひとふき形状
・スゴピカ素材
・激落ちバブル
・スパイラル水流
サイドのカウンターは手摺り代わりにもなります。
パントリーにニッチ収納を設け、小物類もスッキリと収納出来るようにしました。
仕事・家事・育児をこなす奥様に少しでもゆっくりできる時間を過ごして頂くため、家事ラクな設備を盛り込みました。
お話を頂く前に奥様にて下調べをして頂いており、メーカーはPanasonicに決まりました。
Panasonicならではの最新機能ラクするテクノロジーを多く盛り込んだ設備で快適度が向上しました。
パントリーにニッチ収納を設け、小物類もスッキリと収納が出来るようにしました。



Panasonic MRを採用。お掃除がしやすく、浴槽がまたぎやすくなりました。冬場の寒さ対策に、壁面浴室暖房を設置しました。・酸素美泡湯 全身を微発泡が包み身体のポカポカが長続き。 お肌もすべすべになります。入浴剤より経済的です! 入浴中の息苦しさも無いので長湯の方にもおすすめです。
家族で使うには小さめな洗面化粧台

Panasonicウツクシーズを採用。上部からの吐水なのでお掃除もしやすく、キレイが長続き。ミラーキャビネットへの収納で小物類もスッキリ!
入口に框がある、昔の造りをしたトイレ

PanasonicアラウーノS2お掃除しやすく汚さないを追求した
・ひとふき形状
・スゴピカ素材
・激落ちバブル
・スパイラル水流

サイドのカウンターは手摺り代わりにもなります。

パントリーにニッチ収納を設け、小物類もスッキリと収納出来るようにしました。
