PanasonicリフォームClub
TOP TOPリフォーム事例検索詳細

富山県 T様邸

ネコちゃんのお部屋

お店の情報・お問い合わせ  このお店の他の事例を見る
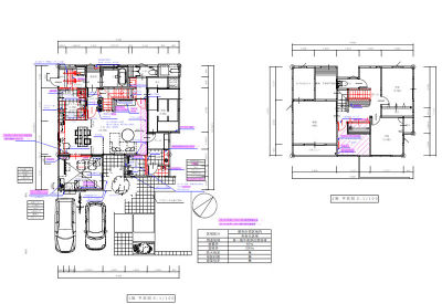
データ
建物種別 戸建て
改修規模 増改築
築年数 築10年
工事面積 約5m2
施工期間 約120日
工事費 約120万円
地域 富山県
家族構成 ご夫婦+子供2人
テーマ 自然素材、ペット、吹き抜け、その他
全国の「Panasonic リフォーム Club」のお店をさがす
リフォームポイント

吹き抜け部分を部屋に改修しました。

お客様の声
・勾配天井の板張りが良い雰囲気になった。無垢材を使うことによりその質感が良かった。吹抜けをつぶすことでエアコンの効きが良い。
担当者の声
古川 裕子

増築部の天井は勾配天井とし、空間の広がりを考慮し米杉を張り暖かな雰囲気にしました。ウォールナットの無垢材の床をメインに壁・天井はスッキリとさせました。少しの空間を利用しながら収納量を上げれるように工夫しました。吹抜け部分に部屋を増設しネコちゃん用の部屋に!コロナ禍でテレワークのことを考えてキッチン横にデスクワークやお子様の勉強ができるようにデスクをキッチンに併設しました。
ビフォーアフター
ビフォー

アフター

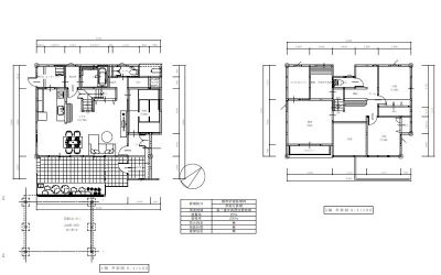
愛猫家のご家族の強いご要望で特別室をつくりました。一方で冷暖房の効率が良くなりました。

ビフォー

趣味とプライベートの部屋が欲しい。ペットの部屋作りたい。

アフター

趣味とプライベートの部屋を増築。吹抜けがあったがその部分にペットの部屋を作り、1階の冷暖房の効率を上げました。

このリフォームで採用したパナソニック商品
施工店情報
パナソニックリフォームクラブ
ヨネモクリフォーム 米田木材株式会社
(旧:リファイン新湊)

〒934-0092
住所:富山県高岡市中曽根262-1
電話:0766-83-7227 FAX:0766-83-7228

■運営会社名 米田木材株式会社
■建設業 富山県知事許可(般-7)第11610号
■建築士事務所 一級建築士事務所:富山県知事登録第(3)1988号

このお店の情報・事例を見る
ヨネモクリフォーム 米田木材株式会社(旧:リファイン新湊)のリフォーム事例一覧
このお店の他の事例を見る
ページの先頭へ