| 建物種別 | 戸建て |
|---|---|
| 改修規模 | 全面リフォーム |
| 築年数 | 築38年 |
| 総工事面積 | 約127m2 |
| 施工期間 | 約90日 |
| 総工事費 | 約960万円 |
| 地域 | 北海道 |
| 家族構成 | 両親+夫婦+子供2人 |
| テーマ | 団らんキッチン、二世帯、明るい部屋、広々、その他 |
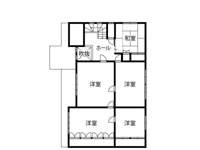
2部屋の洋室を広々としたLDKにリフォーム。眺めの良い既存の窓も生かし、開放感たっぷりに。構造上、取れなかった柱を内装と同柄のラッピング化粧ボードでコーディネイト。空間のアクセントに。
フロート対面プランのオープンキッチンがLDKに広がりを与えます。
LDKの窓越しに広がる美しい自然の風景。四季を楽しみながらくつろげます。
回遊できるウォークインパントリー。食品以外に日用品も収納できる広さです。
洗濯物を洗って干せるランドリールームは、雪の多い北海道の冬に活躍。
奥様のご両親のそばに住みたいとお考えだったS様。新築も検討されましたが、ご両親がほとんど使っておられない、広いご実家の2階をS様ご家族用にリフォームして同居されることに。2階からの眺望は抜群で、窓に自然の風景が広がり、夏には花火大会も鑑賞できます。その良さを生かし、開放的でおしゃれなLDKをとご希望になりました。そこで、壁を1つ取ってゆとりあるLDKを新設し、窓際に眺めが満喫できるカウンターを設置しました。天井も可能な限り高くしたうえで、一部を折り上げ天井風にしています。
1階の玄関・浴室をご両親と共用する準二世帯住宅。そのおかげで生まれた空間もリフォームに取り込み、たっぷり収納できるウォークインのパントリーとクローゼットも設置。新築に比べて少ないご予算でお望みの住まいが実現しました。

2部屋の洋室を広々としたLDKにリフォーム。眺めの良い既存の窓も生かし、開放感たっぷりに。構造上、取れなかった柱を内装と同柄のラッピング化粧ボードでコーディネイト。空間のアクセントに。

フロート対面プランのオープンキッチンがLDKに広がりを与えます。
