| 建物種別 | 戸建て |
|---|---|
| 改修規模 | 全面リフォーム |
| 築年数 | 築30年 |
| 総工事面積 | 約40m2 |
| 施工期間 | 約30日 |
| 総工事費 | 約950万円 |
| 地域 | 愛知県 |
| テーマ | 団らんキッチン、吹き抜け、その他 |
まず目に飛び込んでくるステンレスと無垢の木の質感 アイランドキッチン
そして天井が抜けて開放的になり町家の雰囲気が漂うLDK
壁には古材を貼り、部屋の雰囲気に合うよう食器置きは水屋箪笥をリメイクして使用
空間の有効活用 眠っていた梁を呼び起こす
吹抜け部分の壁はベージュで明るく 梁がよく目立ちます
奥様のこだわりが詰まった
京町家風の和室 ソファーとはまたちがったリラックスできる和の空間 座ったり横になったり…
お雛様を飾るスペースが欲しいとのことで吊押入れ下に設けました 季節に合わせて色々アレンジ
じつはコンセントを隠すためにバラの板をお客さまが購入 コンセントも隠すことでオシャレなインテリアの一部に変身
使い勝手の良い和室 くつろぎスペース
以前から京都の町家に強い関心と憧れを抱いていました。町家の旅館や京都の町家を色々と見て回ることが趣味になるほどでした。わが家も町家のようになれば毎日が楽しく快適に過ごせるのではないかと考えるように。築30年のわが家の町家リノベーションをどこにお願いすればいいのだろうと考えました。その時、ナイスホームさんのHPにたどり着き、モダンでおしゃれな施工事例を見つけ「ここならイメージしている京町家のようなLDKにしてもらえるのではないか」そうしたことで相談し、リノベーションをお願いすることになりました。
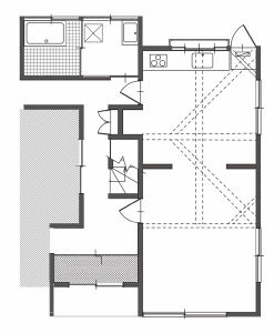
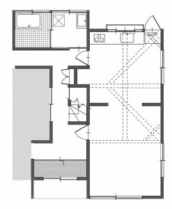
だんだん古くなってきたので今までの雰囲気とは全然違うワンフロアで開放的なLDKにしたい

まず目に飛び込んでくるステンレスと無垢の木の質感 アイランドキッチン
そして天井が抜けて開放的になり町家の雰囲気が漂うLDK
家族に背をむけてご飯を作っていたのでみんなの顔が見え、こだわりのキッチンをつくりたい

壁には古材を貼り、部屋の雰囲気に合うよう食器置きは水屋箪笥をリメイクして使用

空間の有効活用 眠っていた梁を呼び起こす
吹抜け部分の壁はベージュで明るく 梁がよく目立ちます
キッチンがあった場所には和室を 元冷蔵庫スペースは収納に

奥様のこだわりが詰まった
京町家風の和室 ソファーとはまたちがったリラックスできる和の空間 座ったり横になったり…

お雛様を飾るスペースが欲しいとのことで吊押入れ下に設けました 季節に合わせて色々アレンジ
老朽化も進み、憧れであった町家風にリノベーションしたい

キッチンをLDKの中心に 愛犬と一緒にいれるスペース確保 ワンフロアにし吹抜けをつくり開放的な空間にして眠っていた梁も活かした吹抜けが完成