PanasonicリフォームClub
TOP TOPリフォーム事例検索お困りごとお困りごと(せまい)詳細

愛知県 T様邸

ライフスタイルに合わせ、そして更に長く暮すための『今の暮らし方を再確認』リフォーム

お店の情報・お問い合わせ  このお店の他の事例を見る
データ
建物種別 戸建て
改修規模 全面リフォーム
築年数 築36年
施工期間 約90日
地域 愛知県
テーマ 平屋建て、耐震、その他
全国の「Panasonic リフォーム Club」のお店をさがす
リフォームポイント

長年住まわれていた大切なお住まいを、更に長く安全に安心して暮らせるように、耐震補強・水廻り・外壁・外構の全面リフォームを行いました。(長期優良住宅化リフォーム推進事業対象工事)
また、小便器スペースの撤去、浴室の拡張、収納部の増設、和室を洋室に変更等を行い、建てた当時とは違う、今のT様ご家族様の暮らし方を見つめなおしたお住まいになりました。

ビフォーアフター
ビフォー

アフター

サッシの交換、断熱材の入れ換えで省エネもUP。外壁を張替え、外構も整えイメージチェンジ。

ビフォー

物置は撤去・縮小移設しカーポートを設置することに。

アフター

娘様の車も余裕で停められる広いカーポート。

ビフォー

アフター

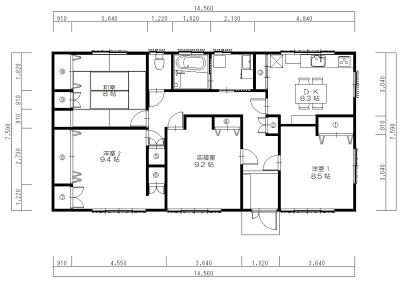
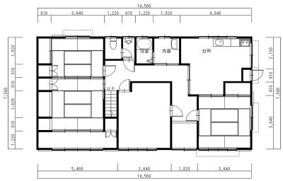
小便器スペースを撤去し、浴室を拡張。収納部の増設、洋室への変更など今の暮らしに合った間取りに変更しました。

このリフォームで採用したパナソニック商品
施工店情報
パナソニックリフォームクラブ
シンセイ建設株式会社
(旧:リファインおおぶ)

〒474-0061
住所:愛知県大府市共和町5-47
電話:0562-44-7055 FAX:0562-46-5293

■運営会社名 シンセイ建設株式会社
■建設業 愛知県知事許可(特-7)第43294号
■建築士事務所 一級建築士事務所:愛知県知事登録(い-4)第4881号

このお店の情報・事例を見る
シンセイ建設株式会社(旧:リファインおおぶ)のリフォーム事例一覧
このお店の他の事例を見る
ページの先頭へ