PanasonicリフォームClub
TOP TOPリフォーム事例検索詳細

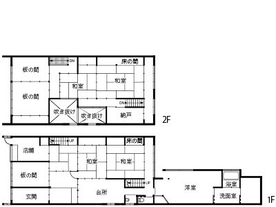
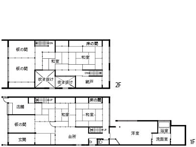
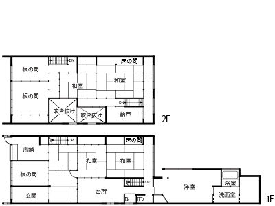
岐阜県 N様邸

家族でくつろげる
ゆったりサイズ

お店の情報・お問い合わせ  このお店の他の事例を見る
データ
建物種別 戸建て
改修規模 全面リフォーム
築年数 築84年
施工期間 約165日
地域 岐阜県
家族構成 2世帯6人 夫婦+夫婦+子供2人
テーマ 団らんキッチン、古民家再生、二世帯、自然素材、吹き抜け、耐震、その他
全国の「Panasonic リフォーム Club」のお店をさがす
お客様の声
古民家らしい柱と美しい白漆喰が気に入っています。
担当者の声
亀山 立美

玄関の格子戸、吹き抜けからの光に映し出される重厚感など、古民家でしか出せない雰囲気を守りながら、断熱材や耐震壁を配置し、長く快適に暮らせる住まいを目指しました。
ビフォーアフター
ビフォー

アフター

このリフォームで採用したパナソニック商品
施工店情報
パナソニックリフォームクラブ
内藤建設株式会社
(旧:リファイン各務原)

〒504-0021
住所:岐阜県各務原市那加前洞新町4-193
電話:058-322-3031 FAX:058-322-3037

■運営会社名 内藤建設株式会社
■建設業 国土交通大臣許可(特-3)第471号
■建築士事務所 一級建築士事務所:岐阜県知事登録第6675号

このお店の情報・事例を見る
内藤建設株式会社(旧:リファイン各務原)のリフォーム事例一覧
このお店の他の事例を見る
ページの先頭へ