| 建物種別 | 戸建て |
|---|---|
| 改修規模 | 改装・設備交換 |
| 築年数 | 築35年 |
| 施工期間 | 約30日 |
| 地域 | 大阪府 |
| 家族構成 | 4人 |
| テーマ | 団らんキッチン、明るい部屋、広々、その他 |
ダイニングの天井の桟をあえて残し、ダウンライトを配置。「想像以上に明るくなり、デザインも調和がとれて満足です」とN様。
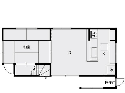
以前はカップボードと冷蔵庫で間仕切りされていたキッチンとダイニング。吊戸なしの対面キッチンにしたことで明るく広々と。家族との会話も楽しめるようになりました。
和室の天井とフローリング、 サッシや柱の色、キッチンの扉柄や窓枠などの色を合わせて空間に統一感を。和室側は襖の柄や畳の縁を洋室に合わせてコーディネイト。
間仕切開閉壁を全開にすると広いLDKに。少人数のときやエアコンを効かせたいときは閉めて効率よく。シーンに合わせた使い方ができます。
間仕切開閉壁を全開にすると広いLDKに。少人数のときやエアコンを効かせたいときは閉めて効率よく。シーンに合わせた使い方ができます。
親戚が集まる機会の多いN様は、もてなすための広く使える空間を要望。既存の和室をいかして、ダイニングとの間に間仕切開閉壁を設置し、開けば広いLDKとしても使えるように変更しました。「親戚などが集まった際には、キッチンにいても話が弾むようになりました。対面キッチンなので配膳もしやすく、とても便利です」とN様も大満足。ダイニング側に付けたニッチ棚もポイントとなり、飾り棚として活躍しています。

ダイニングの天井の桟をあえて残し、ダウンライトを配置。「想像以上に明るくなり、デザインも調和がとれて満足です」とN様。
