| 建物種別 | 戸建て |
|---|---|
| 改修規模 | 改装・設備交換 |
| 築年数 | 築30年 |
| 工事面積 | 約22m2 |
| 施工期間 | 約18日 |
| 地域 | 富山県 |
| 家族構成 | 世帯 4人 |
| テーマ | その他 |
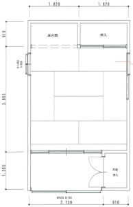
下がり壁をはさみ、内窓付の明るく暖かい縁側も含めたスタディコーナーに。
既存のエアコンや換気扇はそのままに、ランドセルやミシンもしまえる収納付スタディコーナーになりました。
縁側の収納を天井までにしたことで、今までしまえなかったスキーや、大きな箱のお雛様も中にしまうことができました。
和室と縁側間の下がり壁を極力縮小し、段差も解消し、ひとつの空間としました。和室はお客様が来られた時に備えて、半分は畳コーナーとし、床の間と押入は残し、半分はたくさんの本がしまえるスタディールームにそました。一面のキュビオスは、二人分のデスクと教科書、ランドセルやミシン、プリンターもしまえる大きさの収納をつけました。もう一面には本がたくさんしまえるシェルフシステムを設置しました。


縁側の収納は、サイズが合わず、しまいたい物が中に入らず困っていました。

下がり壁をはさみ、内窓付の明るく暖かい縁側も含めたスタディコーナーに。
本がたくさんあり、本の収納に困っていました。

既存のエアコンや換気扇はそのままに、ランドセルやミシンもしまえる収納付スタディコーナーになりました。
寒い縁側に机を置き本を読んでいました。

縁側の収納を天井までにしたことで、今までしまえなかったスキーや、大きな箱のお雛様も中にしまうことができました。
たくさんある本を一か所にまとめたい。既存の収納も入れたい物が入らず、和室が物置場になってしまう。

和室と縁側をひとつの空間にして、和室の半分は畳コーナーとし、床の間、押入はそのまま残し、残りの部分を本がたくさん収納できるスタディールームにしました。