| 建物種別 | 戸建て |
|---|---|
| 改修規模 | 改装・設備交換 |
| 築年数 | 築30年 |
| 総工事面積 | 約23m2 |
| 施工期間 | 約18日 |
| 総工事費 | 約248万円 |
| 地域 | 富山県 |
| 家族構成 | 世帯 4人 |
| テーマ | その他 |
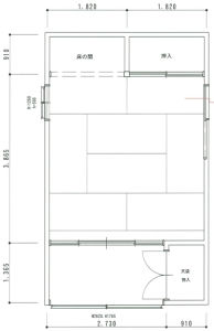
下がり壁をはさみ、内窓付の明るく暖かい縁側も含めたスタディコーナーに。
既存のエアコンや換気扇はそのままに、ランドセルやミシンもしまえる収納付スタディコーナーになりました。
縁側の収納を天井までにしたことで、今までしまえなかったスキーや、大きな箱のお雛様も中にしまうことができました。
本を読むのが大好きなご家族。本が片付かないので、たくさんある本を一か所にまとめて、図書スペースを作りたい。既存の収納も入れたいものが入らずに、使いにくく、入らない物は和室に置くしかなく、せっかくの和室が物置場になってしまう。また、お子様が小学生になるので、勉強するスペースを作りたい。リビングにあるパソコンなども同じところに集約したい。


縁側の収納は、サイズが合わず、しまいたい物が中に入らず困っていました。

下がり壁をはさみ、内窓付の明るく暖かい縁側も含めたスタディコーナーに。
本がたくさんあり、本の収納に困っていました。

既存のエアコンや換気扇はそのままに、ランドセルやミシンもしまえる収納付スタディコーナーになりました。
寒い縁側に机を置き本を読んでいました。

縁側の収納を天井までにしたことで、今までしまえなかったスキーや、大きな箱のお雛様も中にしまうことができました。
たくさんある本を一か所にまとめたい。既存の収納も入れたい物が入らず、和室が物置場になってしまう。

和室と縁側をひとつの空間にして、和室の半分は畳コーナーとし、床の間、押入はそのまま残し、残りの部分を本がたくさん収納できるスタディールームにしました。