PanasonicリフォームClub
TOP TOPリフォーム事例検索お困りごとお困りごと(暗い)詳細

富山県 N様

おうちに図書館 ~ゆったりくつろげる和コーナーと収納たっぷりスタディーコーナーのある部屋~

お店の情報  このお店の他の事例を見る
データ
建物種別 戸建て
改修規模 改装・設備交換
築年数 築30年
総工事面積 約23m2
施工期間 約18日
総工事費 約248万円
地域 富山県
家族構成 世帯 4人
テーマ その他
全国の「Panasonic リフォーム Club」のお店をさがす
リフォームポイント

本を読むのが大好きなご家族。本が片付かないので、たくさんある本を一か所にまとめて、図書スペースを作りたい。既存の収納も入れたいものが入らずに、使いにくく、入らない物は和室に置くしかなく、せっかくの和室が物置場になってしまう。また、お子様が小学生になるので、勉強するスペースを作りたい。リビングにあるパソコンなども同じところに集約したい。

お客様の声
明るい場所で本が読め、本もスッキリと収納できた。ランドセルやカバンやミシンなど収納する物に合わせた無駄のない収納になった。また、今まで出していたものもスッキリ片付いてよかった。お子様は、自分のスタディーコーナーができて、とても喜んで毎日楽しくしている。
担当者の声
古川 裕子

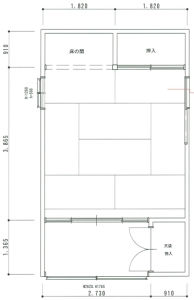
和室と縁側間の段差を解消し、下がり壁を極力縮小し、奥まで光の入る、ひとつの空間としました。和室の床の間や押入は残し、畳コーナーも作りつつ、日当たりの良い元縁側部分を含めた半分は本がたくさんしまえるスタディーコーナーに。スタディーコーナーの壁一面には、シェルフシステムで本がズラリ。もう一面は小学生になるお子様のデスクとパソコンコーナーになるデスク兼壁面収納に。教科書もランドセルだけでなく、奥様のミシンやプリンターも収納できるように工夫しました。デスクだけでなく畳に座ってまったりと本を読んだりできます.また、リビングにもキュビオスを設置し、テレビボード兼、大人二人とお姉ちゃんのロッカーにしました。
ビフォーアフター
ビフォー

縁側の収納は、サイズが合わず、しまいたい物が中に入らず困っていました。

アフター

下がり壁をはさみ、内窓付の明るく暖かい縁側も含めたスタディコーナーに。

ビフォー

本がたくさんあり、本の収納に困っていました。

アフター

既存のエアコンや換気扇はそのままに、ランドセルやミシンもしまえる収納付スタディコーナーになりました。

ビフォー

寒い縁側に机を置き本を読んでいました。

アフター

縁側の収納を天井までにしたことで、今までしまえなかったスキーや、大きな箱のお雛様も中にしまうことができました。

ビフォー

たくさんある本を一か所にまとめたい。既存の収納も入れたい物が入らず、和室が物置場になってしまう。

アフター

和室と縁側をひとつの空間にして、和室の半分は畳コーナーとし、床の間、押入はそのまま残し、残りの部分を本がたくさん収納できるスタディールームにしました。

このリフォームで採用したパナソニック商品
施工店情報
パナソニックリフォームクラブ
ヨネモクリフォーム 米田木材株式会社
(旧:リファイン新湊)

〒934-0092
住所:富山県高岡市中曽根262-1
電話:0766-83-7227 FAX:0766-83-7228

■運営会社名 米田木材株式会社
■建設業 富山県知事許可(般-7)第11610号
■建築士事務所 一級建築士事務所:富山県知事登録第(3)1988号

このお店の情報・事例を見る
ヨネモクリフォーム 米田木材株式会社(旧:リファイン新湊)のリフォーム事例一覧
このお店の他の事例を見る
ページの先頭へ