| 建物種別 | 戸建て |
|---|---|
| 改修規模 | 全面リフォーム |
| 築年数 | 築50年 |
| 総工事面積 | 約237m2 |
| 施工期間 | 約300日 |
| 総工事費 | 約3443万円 |
| 地域 | 大阪府 |
| 家族構成 | 世帯 人 |
| テーマ | 二世帯、バリアフリー、介護、明るい部屋、広々、その他 |
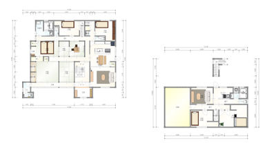
LDKを広々と空間としました。
元階段部分の柱を生かして収納を設置。壁には間接照明付の飾り棚を設置
LDKのクロスに変化を持たせることとしましたが、空間に広がりを出すため、間接照明付の壁を設置
キッチンとリビングの間に可動棚を設けることで、必要な時に部屋を区切ることができます。
玄関ホールの和室部分に階段を設置。
圧迫感を与えないために、階段下部分の空間を有効に利用し、ダウンライトに照らされる生け花の飾り場所となりました。
廊下に手摺を設けて、白を基調と
することで、広々とした明るい
廊下となりました。
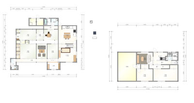
2世帯住宅6名で暮らしているお客様。親世帯も高齢化してきたので世代交代をお考えになったことがきっかけ。1階に老夫婦2人で、2階に若夫婦と孫の4名でお暮しでした。世代交代及び今後の介護の事も考えて若夫婦が1階に下りてくることに。日常で使える部屋が少なく、各所に段差がありました。老夫婦も快適安全に、若夫婦も介護がしやすく快適に暮らせる住まいをご希望でした。
広いキッチンだけども物があふれている。6人掛けのテーブルを置くと身動きが取れない状況に。

LDKを広々と空間としました。
元階段部分の柱を生かして収納を設置。壁には間接照明付の飾り棚を設置
キッチンの反対に位置する元応接室。キッチンとの間の壁を取り払い階段を別の場所に移設すると広々とした空間が広がります。

LDKのクロスに変化を持たせることとしましたが、空間に広がりを出すため、間接照明付の壁を設置
LDKの間に立ちはだかる階段。
勾配もきつく、老夫婦はここ何年も2階に上がることが無いそうです。

キッチンとリビングの間に可動棚を設けることで、必要な時に部屋を区切ることができます。
重厚感のある玄関ホール。
高級感の演出にはなりますが、
お客様を迎え入れるだけの部屋。
有効活用できないかと。

玄関ホールの和室部分に階段を設置。
圧迫感を与えないために、階段下部分の空間を有効に利用し、ダウンライトに照らされる生け花の飾り場所となりました。
荷物があふれていた廊下
廊下の機能が全く果たせて
おりませんでした。

廊下に手摺を設けて、白を基調と
することで、広々とした明るい
廊下となりました。
LDKの真ん中に階段があることにより小さな部屋に分断されてしまっております。

階段を玄関前に新設。
元階段の両脇の抜けない柱を利用して収納及び3枚引き込み扉の戸袋へ。