| 建物種別 | 戸建て |
|---|---|
| 改修規模 | 増改築 |
| 総工事面積 | 約160m2 |
| 施工期間 | 約180日 |
| 総工事費 | 約4600万円 |
| 地域 | 宮城県 |
| 家族構成 | 2人 |
| テーマ | バリアフリー、ホームシアター |
玄関は飾り棚を設け、代々受け継がれてきた家紋が象徴的に出迎えてくれます。
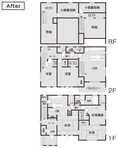
築100年を超えるお住まいが震災によって全壊したことから、それまで旧家を支えてきたお母様のために建替を決意されたN様。冬の寒さが厳しくお困りでもあったため、床暖房や浴室暖房を取り入れた住む人に優しい空間へリフォーム。N様専用の2階リビングはゆっくりくつろげるホームシアター仕様とし、お母様の過ごす空間は手すりを設けるなどバリアフリーな配慮が行き届いています。

