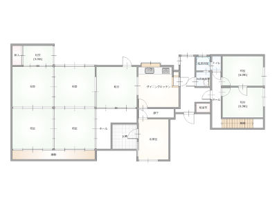
| 建物種別 | 戸建て |
|---|---|
| 改修規模 | 改装・設備交換 |
| 築年数 | 築60年 |
| 総工事面積 | 約35m2 |
| 施工期間 | 約50日 |
| 総工事費 | 約840万円 |
| 地域 | 大阪府 |
| 家族構成 | 1世帯 2人 |
| テーマ | 古民家再生、バリアフリー、明るい部屋、オール電化、広々、その他 |
明るく開放感のある空間に。ダイニングキッチンと1つの空間になることで広々とお使いいただけます。
白を基調とした中にピンクのキッチンがとても素敵です。明るい空間となりました。
物であふれていた収納も大容量のカップボードでスッキリ片付きました。
浴室暖房乾燥機は天井懐がいっぱいでしたので壁付に。手摺もついて安心快適な空間に。
明るく快適な洗面所。腰までのパネルで表情も豊かに。
段差を解消してバリアフリーに。明るく広々とした空間ができました。
段差を解消して窓もペアガラスサッシに取替。隙間風もなく、断熱材により暖かで快適な空間に。
ご夫婦の寝室として利用。太陽の光で目が覚められるお気に入りの空間です。
4畳の和室のうち1畳分を床上げして段差無しに。落下防止のための柵を施し、手洗い器付アラウーノVを設置。明るく開放的なトイレになりました。電気スイッチを付ける場所が窓上の垂れ壁しかなかったため、センサー付ダウンライトを採用。
30年間キッチンにお湯が出ないことをきっかけに、できるだけ段差を少なくし快適に過ごしたいという願いからでした。
暗くどんよりした印象の和室と光の入りにくいキッチンを一つの明るく「今風にしたい」というお考えはあるけれども、伝統のある家は大切にしたい。

暗く寒い部屋。明るく暖かな空間にしたい。

明るく開放感のある空間に。ダイニングキッチンと1つの空間になることで広々とお使いいただけます。
暗くて物にあふれているキッチン。30年間キッチンにお湯が出ませんでした。

白を基調とした中にピンクのキッチンがとても素敵です。明るい空間となりました。
物があふれて困るダイニングキッチン。

物であふれていた収納も大容量のカップボードでスッキリ片付きました。
寒くて滑りやすいお風呂。段差もあって今後が心配。

浴室暖房乾燥機は天井懐がいっぱいでしたので壁付に。手摺もついて安心快適な空間に。
暗くて収納も少ない洗面所。タイルの目地掃除が面倒。

明るく快適な洗面所。腰までのパネルで表情も豊かに。
和室が暗く、光の差し込まない部屋でした。リビングと1部屋にすることにより、風通しや光を取り入れることのできる空間にされたい。また、トイレが離れにしかなかったので、使用していない部屋の一部にトイレを設置することとなりました。

白を基調としたことで空間が明るく広々と感じられます。