| 建物種別 | 戸建て |
|---|---|
| 改修規模 | 増改築 |
| 築年数 | 築34年 |
| 総工事面積 | 約44m2 |
| 施工期間 | 約71日 |
| 総工事費 | 約960万円 |
| 地域 | 愛知県 |
| 家族構成 | 2世帯大人3人 |
| テーマ | バリアフリー、明るい部屋、広々 |
修理ではなく、架け替えた階段。
蹴込み板の無いオープン階段は光も風も通します。
採風も採光も抜群の玄関ドア。
光と風が通る、明るく爽やかな玄関ホールに。
天井までの高さの玄関収納を新設。
収納量が格段にアップ。
開き戸を引戸に取替え、デッドスペースを排除。「開け閉めがとてもラクになった」とご好評。
間取りの変更により、1216(0.75坪)から1616(1坪)にサイズUP。白を基調とし、窓も2ヶ所設け、明るい浴室になりました。
洗面化粧台・洗濯機を設置した洗面脱衣室ができました。サイドキャビネットや造作棚で収納スペースもしっかり確保。パネル仕様の扉で明るさにも配慮。
間取りの変更とタンクレストイレの採用で、スペースが広がりました。
ダイニングキッチンは6帖のスペースを確保。
お孫様もお気に入りのトリプルIHは広々スペースで並んでの調理も可能。
「明るく風を感じる家にしたい」というご要望に対し、根本的な問題解決のために蹴込み板のない「オープン階段」への架け替えをご提案。
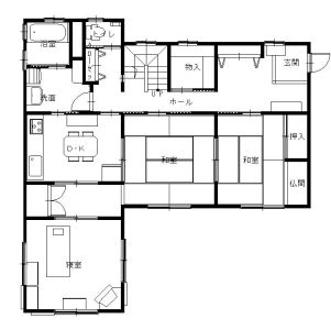
使っていなかった和室や、狭く使い勝手の悪かった水廻りの間取りを変更し、「広く・使いやすい、明るく・風を感じる」お住まいへのリフォームとなりました。

暗く壊れそうだった階段。

修理ではなく、架け替えた階段。
蹴込み板の無いオープン階段は光も風も通します。

採風も採光も抜群の玄関ドア。
光と風が通る、明るく爽やかな玄関ホールに。

天井までの高さの玄関収納を新設。
収納量が格段にアップ。

開き戸を引戸に取替え、デッドスペースを排除。「開け閉めがとてもラクになった」とご好評。
暗く狭かった浴室。

間取りの変更により、1216(0.75坪)から1616(1坪)にサイズUP。白を基調とし、窓も2ヶ所設け、明るい浴室になりました。
狭く、使い勝手の悪かった水廻りの間取りを変更することに。

浴室のサイズアップ、脱衣室・ダイニングキッチンのスペースを確保できました。