PanasonicリフォームClub
TOP TOPリフォーム事例検索お困りごとお困りごと(せまい)詳細

愛知県 R・K様邸

お気に入りの我が家の衣装替え

お店の情報・お問い合わせ  このお店の他の事例を見る
データ
建物種別 戸建て
改修規模 全面リフォーム
築年数 築35年
施工期間 約132日
地域 愛知県
家族構成 ご夫妻様、娘様
テーマ バリアフリー、自然素材、耐震
全国の「Panasonic リフォーム Club」のお店をさがす
リフォームポイント

築35年のK様邸。老朽化と耐震性の低さを心配され、建替かリフォームかを迷われていました。しかし、「これまで慣れ親しんだ、愛着のある我が家から離れがたい」というお気持ちもあり、「耐震+増築」のリフォームプランをご提案。耐震補強とバリアフリーを主軸に、設備の取替え、収納力のアップ、外観のリフレッシュなどさまざまな不安を解消するリフォームとなりました。単なる機能の向上だけでなく、お客様の好みと担当者の細やかな心配りも取り入れたリフォームで、「お気に入りの我が家」が「さらに暮らしやすい心地よい我が家」になりました。

お客様の声
計画当初は、建替かリフォームか迷っていました。しかし、自分の人生ともいえるこの家に愛着があるので、丸ごとリフォームにしようと決断しました。シンセイ建設は耐震の実績も多くあり、信頼できると思い、今回のリフォームをお願いしました。リフォームをしてから耐震やバリアフリー面での安全・安心感が格段に違います。また、広くなったお風呂は冬でも暖かく、足を伸ばしてゆったりと入浴を楽しんでいます。憧れだった漆喰と羽目板も大のお気に入りです。収納力がアップして部屋がスッキリしましたし、外観も一新したので外から帰ってきても気持ちよく家に入れます。以前より快適になり、我が家がさらに大好きになりました。
担当者の声
とても愛着があるお住まいということで、建替ではなく、丸ごとリフォームをご採用いただきました。今まで過ごしてきたお住まいに手を加えることにためらいを感じるお施主様も少なくありません。お施主様のご希望に沿い、生活スタイルを変えないリフォームプランをご提案させていただきました。設備の向上や、自然素材仕上、収納スペースの確保など、「同じだけどより暮らしやすい住まい」になり、ご満足いただけたのではないかと思います。
ビフォーアフター
ビフォー

アフター

日常的に使用するLDKと合わせ、寝室も漆喰塗りと羽目板の仕上に。自然素材の空間で質の良い睡眠を。

ビフォー

アフター

LED照明は、調光付ダウンライトで心地の良い空間を演出。収納は、衣装をたくさんお持ちのお施主様も安心の大容量クローゼットを設置。

ビフォー

アフター

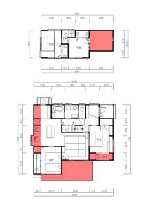
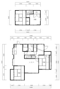
愛着のあるお住まいの雰囲気を壊さぬよう、間取りはそのままに。合計2.6坪の増築部を利用して狭かった浴室と洗面所を拡張。パントリーと広縁も新設し、暮らしにポイントをプラス。2階には小屋裏収納を設け、スペースを有効活用。

このリフォームで採用したパナソニック商品
施工店情報
パナソニックリフォームクラブ
シンセイ建設株式会社
(旧:リファインおおぶ)

〒474-0061
住所:愛知県大府市共和町5-47
電話:0562-44-7055 FAX:0562-46-5293

■運営会社名 シンセイ建設株式会社
■建設業 愛知県知事許可(特-7)第43294号
■建築士事務所 一級建築士事務所:愛知県知事登録(い-4)第4881号

このお店の情報・事例を見る
シンセイ建設株式会社(旧:リファインおおぶ)のリフォーム事例一覧
このお店の他の事例を見る
ページの先頭へ