| 建物種別 | マンション |
|---|---|
| 改修規模 | 全面リフォーム |
| 築年数 | 築12年 |
| 総工事面積 | 約87m2 |
| 施工期間 | 約30日 |
| 総工事費 | 約410万円 |
| 地域 | 愛知県 |
| 家族構成 | ご夫婦、娘さん、息子さんの4人家族 |
| テーマ | 団らんキッチン、その他 |
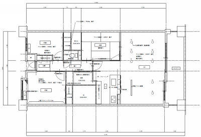
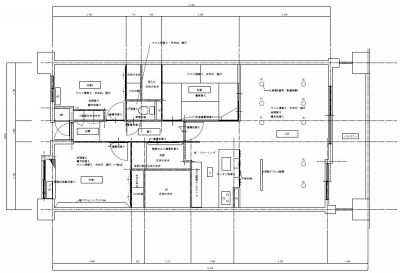
床の色を明るく、オープンキッチンに変更し、ダイニング・リビングとつながりのある空間へ。
カウンターを広く取り、収納を増やした。これで、奥様がキッチンに立っていても家族団らんの時間となる。
ダウンライトを増やし、メイン照明を作らず、小さい明かりを拡散する事でお部屋の隅々まで明るくすっきりとした印象となる。
つながった空間でひろびろとしたイメージになった。
建具を濃いブラウンからホワイトに変える事で、すっきりとした印象。また、上から下までの採光で廊下とのつながりもあるので、廊下側から見ても明かりがとれる。
全て引出しでデッドスペースを少なくしている。また、取っ手をライン取っ手にしたことで、キッチン全体がすっきりとした印象。シンク側の手元にはコンセントがついており、よく使うミキサー等の家電も使いやすい!
吊り戸を無くしすっきり!また、レンジフードもお掃除のしやすい最新タイプへ!
天面はフラットでゴトクも外せてお掃除ラクラク♪
シンクはパナソニックならではのスキマレスシンク!!人造大理石カウンターとの継ぎ目がないからお掃除ラクラク♪
オールスライドで収納たっぷり!
シンク下、機器下にはラックがついていて小物もすっきりと収納可能!
ダイニング側にも収納を付ける事で、わざわざ食器棚に取りに行っていた取り分け用の小皿等もすぐに取れるようになった。
また、ダイニング・リビングで使用する事が多いちょっとした文房具も収納可能!
ピンクのクロスでアクセントをつけた。
パナソニックならではの、タンクレストイレ(手洗い付)で、空間の広さをそのままでお掃除性・節水性UP!
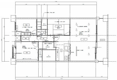
工事前は対面キッチンのはずが閉鎖的なイメージのキッチン空間で、吊り戸がある事でお部屋全体が少し狭く感じてしまいがちでした。吊り戸を思い切って無くし、カウンターを広く取る事でダイニング・リビング側とつながりがある空間へと変わりました。吊り戸分の収納はキッチンの収納を開きから引出にする事で、収納力・使い安さを共にアップさせています。また、床の色を明るくした事で更にお部屋全体が明るく広々と感じられるようになりました。


キッチンが少し閉鎖的な印象・・・。床の色も暗い。

床の色を明るく、オープンキッチンに変更し、ダイニング・リビングとつながりのある空間へ。
小さな小窓から奥様がキッチンしている姿が見えたり見えなったり・・・。奥様から見ても、お子様が何をしているのか様子が分かり辛い!

カウンターを広く取り、収納を増やした。これで、奥様がキッチンに立っていても家族団らんの時間となる。
中央にシーリングライトを取り付ける一般的な照明。

ダウンライトを増やし、メイン照明を作らず、小さい明かりを拡散する事でお部屋の隅々まで明るくすっきりとした印象となる。

つながった空間でひろびろとしたイメージになった。

建具を濃いブラウンからホワイトに変える事で、すっきりとした印象。また、上から下までの採光で廊下とのつながりもあるので、廊下側から見ても明かりがとれる。
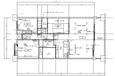
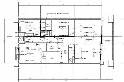
キッチンが壁で囲まれており、キッチンに入るとリビングの様子がまったく見えない間取りでした。

キッチンが対面の配置になっている事を活かし、LDKをつながりのある空間に変更。
さらにキッチン横(廊下側)にあった上から下までの収納を無くす事で、圧迫感がなくなった。