| 建物種別 | 戸建て |
|---|---|
| 改修規模 | 改装・設備交換 |
| 築年数 | 築30年 |
| 総工事面積 | 約29.13m2 |
| 施工期間 | 約37日 |
| 総工事費 | 約495万円 |
| 地域 | 岐阜県 |
| 家族構成 | 2世帯6人(大人3人、子供3人) |
| テーマ | 二世帯、バリアフリー |
カラーをホワイトにし、明るく清潔感のあるキッチンになりました。内装下げ材色も明るめの色調で、キッチンパネルもネオナイーブ柄ホワイト使用。
浴室サッシガラスをペアガラスに交換し、省エネ住宅ポイントを利用。床暖房・暖房換気乾燥機・酸素美泡湯で寒さ対策バッチリ!
スゴピカカウンター・ささっと排水口・カビシャット・暖房換気乾燥機つきで汚れにくく、お掃除も楽チン。
すっきりとした小さめのボディと自動便器洗浄でお掃除も簡単。さらに手洗いカウンター付きにし、手洗いもしやすくなりました。
オーダー感覚で自由にプランニングできるラシスをたっぷり収納できるサイズにしました。とてもすっきりな洗面台に。
脱衣室暖房換気乾燥機を設置して冬場の温かさと安心を確保!
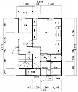
洗面脱衣室やDKの暗さを解消する為に脱衣室南北壁面上部に明り取りを設け、タイル貼りの浴室の寒さ対策の為、省エネ住宅ポイントを利用し床暖房・暖房換気乾燥機・保温浴槽標準仕様のリフォムスバスをご提案。また、離れと母屋の電気メーターが別々の為、光熱費削減の為に母屋をオール電化に改修しメーターを統一した。お母様の今後の高齢化に伴い改修箇所の床を段差解消とした。


古くなった流し台を取替し、明るく清潔感のある仕上がりにしたい。

カラーをホワイトにし、明るく清潔感のあるキッチンになりました。内装下げ材色も明るめの色調で、キッチンパネルもネオナイーブ柄ホワイト使用。
お掃除しやすく、冬場でも温かいお風呂に入りたい。

浴室サッシガラスをペアガラスに交換し、省エネ住宅ポイントを利用。床暖房・暖房換気乾燥機・酸素美泡湯で寒さ対策バッチリ!

スゴピカカウンター・ささっと排水口・カビシャット・暖房換気乾燥機つきで汚れにくく、お掃除も楽チン。
掃除がしやすい広さと手洗い等の動作をスムーズになるようにしたい。

すっきりとした小さめのボディと自動便器洗浄でお掃除も簡単。さらに手洗いカウンター付きにし、手洗いもしやすくなりました。
寒さ軽減とタオルや小物類をすっきり整理し隠せるようにしたい。

オーダー感覚で自由にプランニングできるラシスをたっぷり収納できるサイズにしました。とてもすっきりな洗面台に。
洗面の横に勝手口があり冬場は寒い。

浴室を広くした。洗面脱衣室の配置を変え、またDKの部分を減らし大きくした事で使いやすくなった。