| 建物種別 | 戸建て |
|---|---|
| 改修規模 | 増改築 |
| 築年数 | 築30年 |
| 総工事面積 | 約98m2 |
| 施工期間 | 約150日 |
| 総工事費 | 約2800万円 |
| 地域 | 宮城県 |
| 家族構成 | 2世帯6人(子供2人) |
| テーマ | 二世帯、明るい部屋、耐震、広々、その他 |
勾配天井の広々リビング。
カウンターキッチンでリビングの様子を見ながら料理出来て奥様も満足。
奥行600のカップボードには食器がたっぷり入り、毎日の料理がはかどります。
建具とフローリングの色を合わせて落ち着いたリビングに。
キッズ用ボルダリングでロフトに行けるように。子供にとって楽しい遊び場に。
親世帯の玄関。外壁と屋根との色の統一感を出しました。
子世帯の玄関。少し洋風な扉にしました。
子世帯の玄関ホール。正面にタイルを貼り照明で照らしお洒落な空間へ
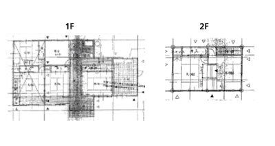
既存の2階床レベルと増築部2階のフロアラインを合わせ、一体的な空間にも使えるように工夫した。玄関は別々であるが、既存の階段を残し、親世帯・子世帯との行き来ができるようにした。



勾配天井の広々リビング。

カウンターキッチンでリビングの様子を見ながら料理出来て奥様も満足。

奥行600のカップボードには食器がたっぷり入り、毎日の料理がはかどります。

建具とフローリングの色を合わせて落ち着いたリビングに。

キッズ用ボルダリングでロフトに行けるように。子供にとって楽しい遊び場に。
玄関・水廻りすべて別々に設置したい。断熱性を高めたい。
2世帯同居のための増改築

玄関を別々にして、親世帯も狭くなく広々。
子世帯の生活の中心を増築部分の2階に集合させた。