| 建物種別 | マンション |
|---|---|
| 改修規模 | 全面リフォーム |
| 築年数 | 築26年 |
| 施工期間 | 約60日 |
| 地域 | 千葉県 |
| テーマ | 自然素材、明るい部屋、広々、その他 |
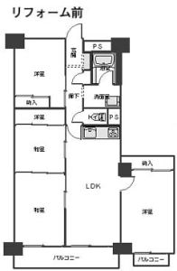
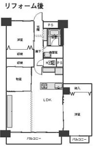
暗くて狭かったマンションのキッチン。 奥様念願の対面キッチンになりました。
ご夫婦二人分の食器なら、キッチンフロアユニット + カップボードで十分
ということで、ウォールユニットはつけませんでした。
IHクッキングヒーターと食洗機をつけた対面キッチン。
リビングにいるご主人やお孫さんたちとの会話にも参加できるようになりました。
築30年近いマンションにお住まいのご夫婦。
ご主人の定年とお子様の独立を機に、郷里に帰ることもお考えでしたが、偶然立ち寄られた弊社の現場見学会で、「リフォームで新築同様になる」ことを実感され、リフォームを決断されました。
転勤続きだったご主人。これからは、奥様と二人で快適な住まいでゆったりした生活を楽しまれることでしょう。
