玄関収納コンポリアで大量収納。コの字型のスペースはポストの取り出し口トして利用しています。
広縁のあった明るい和室を娘様の部屋に。広く取った収納部はそれぞれの使い道でご利用できるように3か所に分けました。
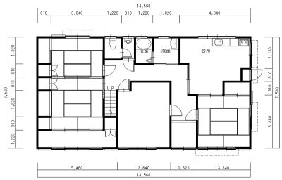
北側の和室は床の間を移設し客間としても利用。
収納式階段に架け替えて収納部を増設。普段使いを優先させました。
長年住まわれていた大切なお住まいを、更に長く安全に安心して暮らせるように、耐震補強・水廻り・外壁・外構の全面リフォームを行いました。(長期優良住宅化リフォーム推進事業対象工事)
また、小便器スペースの撤去、浴室の拡張、収納部の増設、和室を洋室に変更等を行い、建てた当時とは違う、今のT様ご家族様の暮らし方を見つめなおしたお住まいになりました。

玄関収納コンポリアで大量収納。コの字型のスペースはポストの取り出し口トして利用しています。
二間続きの和室は娘様の洋室と床の間のある和室に変更。

広縁のあった明るい和室を娘様の部屋に。広く取った収納部はそれぞれの使い道でご利用できるように3か所に分けました。

北側の和室は床の間を移設し客間としても利用。
ほとんど使われていない小屋裏への階段。

収納式階段に架け替えて収納部を増設。普段使いを優先させました。


小便器スペースを撤去し、浴室を拡張。収納部の増設、洋室への変更など今の暮らしに合った間取りに変更しました。