| 建物種別 | 戸建て |
|---|---|
| 改修規模 | 全面リフォーム |
| 築年数 | 築50年 |
| 工事面積 | 約36m2 |
| 施工期間 | 約300日 |
| 工事費 | 約1000万円 |
| 地域 | 大阪府 |
| 家族構成 | 世帯 人 |
| テーマ | 二世帯、バリアフリー、介護、明るい部屋、広々、その他 |
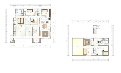
LDKを広々と空間としました。
元階段部分の柱を生かして収納を設置。壁には間接照明付の飾り棚を設置
LDKのクロスに変化を持たせることとしましたが、空間に広がりを出すため、間接照明付の壁を設置
キッチンとリビングの間に可動棚を設けることで、必要な時に部屋を区切ることができます。
2部屋を分断していた部屋を1部屋にすることにより解放的で広い空間をご提供することができました。
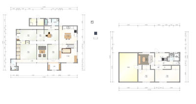
広いキッチンだけども物があふれている。6人掛けのテーブルを置くと身動きが取れない状況に。

LDKを広々と空間としました。
元階段部分の柱を生かして収納を設置。壁には間接照明付の飾り棚を設置
キッチンの反対に位置する元応接室。キッチンとの間の壁を取り払い階段を別の場所に移設すると広々とした空間が広がります。

LDKのクロスに変化を持たせることとしましたが、空間に広がりを出すため、間接照明付の壁を設置
LDKの間に立ちはだかる階段。
勾配もきつく、老夫婦はここ何年も2階に上がることが無いそうです。

キッチンとリビングの間に可動棚を設けることで、必要な時に部屋を区切ることができます。
LDKの真ん中に階段があることにより小さな部屋に分断されてしまっております。

階段を玄関前に新設。
元階段の両脇の抜けない柱を利用して収納及び3枚引き込み扉の戸袋へ。