PanasonicリフォームClub
TOP TOPリフォーム事例検索詳細

大阪府 N 様

新しいそれぞれのトイレ

お店の情報・お問い合わせ  このお店の他の事例を見る
データ
建物種別 戸建て
改修規模 全面リフォーム
築年数 築50年
工事面積 約10m2
施工期間 約300日
工事費 約180万円
4箇所のトイレ工事です。
地域 大阪府
家族構成 世帯 人
テーマ 二世帯、バリアフリー、介護、明るい部屋、広々、その他
全国の「Panasonic リフォーム Club」のお店をさがす
リフォームポイント

親世帯と子世帯。生活のリズムも違うので、それぞれ用のトイレを設置。
各部屋から近いところにトイレを設けることで、流す音等を気にせずに生活することができます。
親世帯用のトイレには壁までパネルを貼り、掃除をしやすいようにいたしました。

お客様の声
今までは暗いイメージの室内が、白を基調としたことで、明るく広い空間を作り出すことができました。
親世帯と子世帯・孫たちと生活リズムが異なる世代がそれぞれを尊重し、気兼ねなく暮らしていける動線が確立できました。
担当者の声
古賀 恵

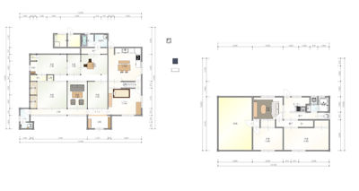
LDKと応接室の間に階段があることにより部屋を分断しておりました。
広い空間をご提案するには、LDKの真ん中に階段を設けるか、別の箇所に
新たに階段を設けるかということが一番の難関でした。
お孫様は年頃の女の子で、LDKの真ん中の階段を上がって2階に上がることは抵抗を感じられておりました、
階段を玄関前の和室に設置することとなりました。
ゆくゆくの介護を考えて、できる限りのバリアフリーといたしました。
建物が蔵・駐車小屋等の建物に囲まれているため、北側はほとんど光が差し込まない状況でしたので、白を基調としたインテリアでコーディネートいたしました。
ビフォーアフター
ビフォー

アフター

ビフォー

アフター

ビフォー

LDKの真ん中に階段があることにより小さな部屋に分断されてしまっております。

アフター

階段を玄関前に新設。
元階段の両脇の抜けない柱を利用して収納及び3枚引き込み扉の戸袋へ。

このリフォームで採用したパナソニック商品
現行のおすすめ商品
施工店情報
パナソニックリフォームクラブ
大和工業株式会社 大阪南支店
(旧:リファイン三日市)

〒586-0048
住所:大阪府河内長野市三日市町191-2
電話:0721-62-3350 FAX:0721-62-5119

■運営会社名 大和工業株式会社
■建設業 国土交通大臣許可(特-7)第23517号
■建築士事務所 一級建築士事務所:大阪府知事登録(へ)第18557号

このお店の情報・事例を見る
大和工業株式会社 大阪南支店(旧:リファイン三日市)のリフォーム事例一覧
このお店の他の事例を見る
ページの先頭へ