PanasonicリフォームClub
TOP TOPリフォーム事例検索詳細

千葉県

ふたりで暮らす幸せ
<2007年度リファイン大賞 地区最優秀賞受賞>

お店の情報・お問い合わせ  このお店の他の事例を見る
データ
建物種別 マンション
改修規模 全面リフォーム
築年数 築26年
施工期間 約60日
地域 千葉県
テーマ 自然素材、明るい部屋、広々、その他
全国の「Panasonic リフォーム Club」のお店をさがす
リフォームポイント

築30年近いマンションにお住まいのご夫婦。
ご主人の定年とお子様の独立を機に、郷里に帰ることもお考えでしたが、偶然立ち寄られた弊社の現場見学会で、「リフォームで新築同様になる」ことを実感され、リフォームを決断されました。
転勤続きだったご主人。これからは、奥様と二人で快適な住まいでゆったりした生活を楽しまれることでしょう。

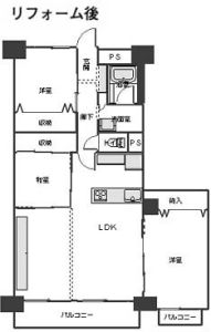
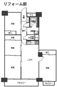
ビフォーアフター
ビフォー

アフター

施工店情報
パナソニックリフォームクラブ
リファイン新松戸 株式会社ソレイユ・リビング・テック
(旧:リファイン新松戸)

〒270-0034
住所:千葉県松戸市新松戸3丁目208番地1号
電話:047-309-2233 FAX:047-309-2221

■運営会社名 株式会社ソレイユ・リビング・テック
■建設業 千葉県知事許可(般-2)第39535号

このお店の情報・事例を見る
リファイン新松戸 株式会社ソレイユ・リビング・テック(旧:リファイン新松戸)のリフォーム事例一覧
このお店の他の事例を見る
ページの先頭へ