| 建物種別 | 戸建て |
|---|---|
| 改修規模 | 全面リフォーム |
| 築年数 | 築50年 |
| 工事面積 | 約12m2 |
| 施工期間 | 約300日 |
| 工事費 | 約450万円 |
| 地域 | 大阪府 |
| 家族構成 | 世帯 人 |
| テーマ | 二世帯、バリアフリー、介護、明るい部屋、広々、その他 |
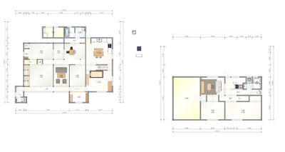
玄関ホールの和室部分に階段を設置。
圧迫感を与えないために、階段下部分の空間を有効に利用し、ダウンライトに照らされる生け花の飾り場所となりました。
廊下に手摺を設けて、白を基調と
することで、広々とした明るい
廊下となりました。
階段を玄関前の和室に設置。今までは玄関からのお客様の視線に入るついたてと生け花のみ置かれていた空間。階段下の空間を有効に使い、ダウンライトの優しく照らす光が老奥様の生け花を優しく包み込みます。
重厚感のある玄関ホール。
高級感の演出にはなりますが、
お客様を迎え入れるだけの部屋。
有効活用できないかと。

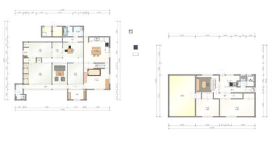
玄関ホールの和室部分に階段を設置。
圧迫感を与えないために、階段下部分の空間を有効に利用し、ダウンライトに照らされる生け花の飾り場所となりました。
荷物があふれていた廊下
廊下の機能が全く果たせて
おりませんでした。

廊下に手摺を設けて、白を基調と
することで、広々とした明るい
廊下となりました。
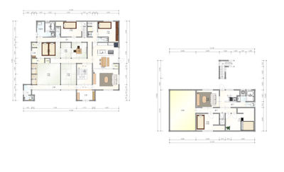
LDKの真ん中に階段があることにより小さな部屋に分断されてしまっております。

階段を玄関前に新設。
元階段の両脇の抜けない柱を利用して収納及び3枚引き込み扉の戸袋へ。